Piangipane Via Piangipane – ULTIMI APPARTAMENTI IN CLASSE A
Nuovi appartamenti in contesto di sole 4 unità immobiliari, immerse nel verde, ma a pochi km da Ravenna.
Il progetto ha previsto la demolizione e la ricostruzione di una villa antica e la costruzione di 2 appartamenti al piano terra e due appartamenti al piano primo + sottotetto.
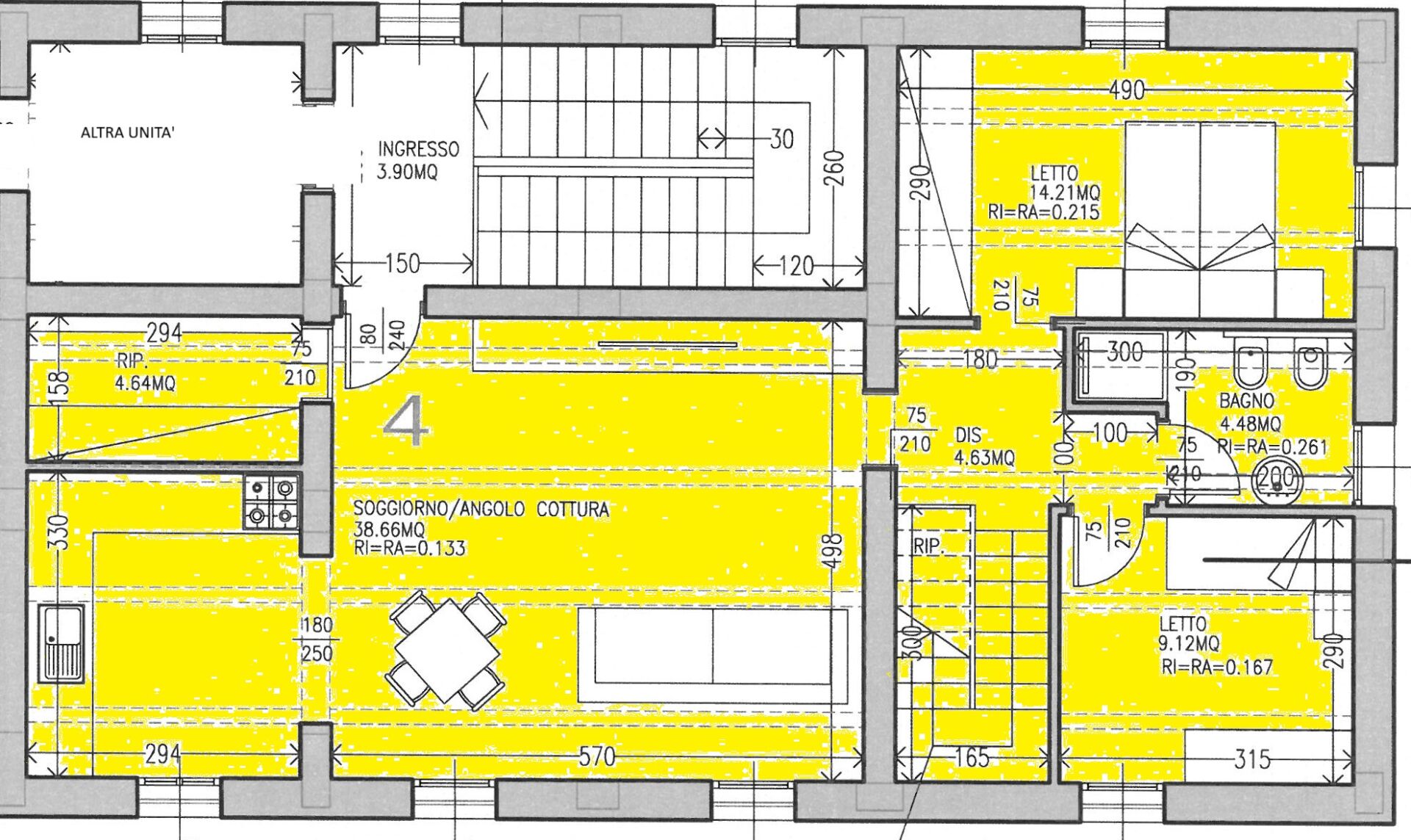
Esempio di appartamento al piano primo: n. 4 ingresso in zona giorno, cucina abitabile, ripostiglio, 2 camere da letto e 1 bagni. Al piano secondo ampio sottotetto servito da scala in arredo in ferro e legno. Posto auto scoperto. Area esterna di circa 200 mq. Impianto fotovoltaico da 6 kw. Finiture interne personalizzabili.
Descrizione:
Descrizione:
Per favore inserisci il tuo nome utente o l'indirizzo email. Riceverai un link per creare una nuova password via email.
Noi e utilizziamo cookie e altre tecnologie di tracciamento per migliorare l’esperienza dell’utente sul nostro sito web. Possiamo memorizzare e/o accedere alle informazioni su un dispositivo ed elaborare i dati personali, come l’indirizzo IP e i dati di navigazione, al fine di fornire pubblicità e contenuti personalizzati, per consentire la misurazione della pubblicità e dei contenuti, ricerche sul pubblico e per sviluppare servizi. Inoltre, possiamo utilizzare dati precisi di geolocalizzazione e identificazione attraverso la scansione del dispositivo.
Notare che il consenso prestato sarà valido per tutti i nostri sottodomini. È possibile modificare o revocare il consenso in qualsiasi momento facendo clic sul pulsante “”Preferenze di consenso”” nella parte inferiore dello schermo. Rispettiamo le scelte dell’utente e ci impegniamo a fornire un’esperienza di navigazione trasparente e sicura.
| Cookie | Durata | Descrizione |
|---|---|---|
| _GRECAPTCHA | 5 months 27 days | Questo cookie è impostato dal servizio recaptcha di Google per identificare i bot per proteggere il sito Web da attacchi di spam dannosi. |
| cookielawinfo-checkbox-advertisement | 1 year | Impostato dal plugin GDPR Cookie Consent, questo cookie viene utilizzato per registrare il consenso dell'utente per i cookie nella categoria "Pubblicità". |
| cookielawinfo-checkbox-analytics | 1 year | Impostato dal plugin GDPR Cookie Consent, questo cookie viene utilizzato per registrare il consenso dell'utente per i cookie nella categoria "Analytics". |
| cookielawinfo-checkbox-functional | 1 year | Il cookie è impostato dal plugin GDPR Cookie Consent per registrare il consenso dell'utente per i cookie nella categoria "Funzionali". |
| cookielawinfo-checkbox-necessary | 1 year | Impostato dal plugin GDPR Cookie Consent, questo cookie viene utilizzato per registrare il consenso dell'utente per i cookie nella categoria "Necessari". |
| cookielawinfo-checkbox-others | 1 year | Impostato dal plugin GDPR Cookie Consent, questo cookie viene utilizzato per memorizzare il consenso dell'utente per i cookie nella categoria "Altri". |
| cookielawinfo-checkbox-performance | 1 year | Set by the GDPR Cookie Consent plugin, this cookie is used to store the user consent for cookies in the category "Performance". |
| viewed_cookie_policy | 1 year | Il cookie è impostato dal plugin GDPR Cookie Consent per memorizzare se l'utente ha acconsentito o meno all'uso dei cookie. Non memorizza alcun dato personale. |
| Cookie | Durata | Descrizione |
|---|---|---|
| 20dbc4926cf657c1cc5fd0e6a5773b1d | 1 day | Nessuna descrizione |